一、移动式一体化污水处理装置简介;
现在国内快速发展,大部分农村城市化,中小型企业也是迅速发展而其中伴随而来的就是污水处理问题了。现在大家经常看到有新闻报道说,这条河或者那条河被污染的很严重,这些的新闻在现在已经不是一件稀奇的事情。这足以可见我们的生活中水处理的必要性,在大型生活社区和厂矿内可选用一体化污水处理设备进行水质改造。
BH-JZ型集装箱式一体化污水处理设备是3044am永利集团环保科技生产的一种污水处理设备,它采用中空纤维膜生物反应器(MBR)技术,将膜分离技术、生物处理技术、智能化控制技术有机结合,整套设备经优化集成后布置在集装箱体内,具有安装快捷、移动方便、处理效果好、占地面积小、运行维护简单等特点。出水可达到《城市杂用水水质》GB/T18920-2002及《景观环境用水水质》GB/T18921-2002,即可达到国家高的《城镇污水处理厂排放标准》GB/T 18920-2002一级B(或一级A)标准,可直接排放或回用。
二、适用场合;
● 旅游风景区、别墅区、住宅区、部队营区、油田钻井队、矿区、燃气站、变电站、车站、收费站、高速服务区、村庄、小集镇等的生活污水处理或回用;
● 临时工地的污水处理或回用;
● 医院、疗养院、养老院的污废水处理。
● 工业企业的生产废水处理或回用。
三、设备特色;
● 安装投用快捷,即接即用,出水迅速达到标准要求,大大缩短施工周期;
● 移动搬运方便,用户可根据需要更换不同安放地点,也可多处共用一套处理设备,巡回使用,节省设备投资;
● 处理效果稳定可靠,BOD去除率98%出水清澈,可直接回用于冲厕、绿化、景观等,也可高标准排放,节水减排;
● 占地面积比普通工艺设备小50%以上,节约用地。
● 设备全自动运行,无需专人值守,无需加药,污泥产量少,维护简便,节省运行费用。
四、安装方式;
● 室外(或室内)地面以上;
● 如需地埋需在订货前说明。
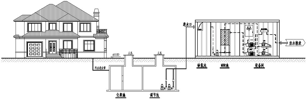
五、设备工艺流程;

六、BH-JZ系列一体化污水处理设备的工艺流程介绍;
1)调节池(客户自建);
收集储存污水,对水量和水质进行调节。
2)提升泵;
调节池内设置提升泵,将污水自动提升到BH-JZ型一体化污水处理设备中。
3)格栅;
污水中经常含有大量杂物,为了保证系统的正常运行,必须将各种纤维、渣物、废纸等杂物拦截在系统之外,因此在系统前设置格栅,定期将栅渣清理干净。
4)缺氧池;
其作用是让大分子的物质分解成小分子的易分解的物质,提高废水的B/C比。另外还能通过反硝化来达到脱氮效果。此段根据原水水质和排放标准来定。
5)MBR反应池;
采用独特结构的浸入平板式或中空纤维膜生物反应器(MBR)组件,它设置于曝气池内,经过好氧曝气和生物处理后的水经过滤膜(孔径0.1um)过滤由泵抽出后可直接排放或回用。由于它的出水不受污泥沉降条件的影响,可使池内保持高容积负荷、长泥龄的条件下运行,这样大大提高生物氧化的工艺条件,提高了有机物降解效率,同时省去了二沉池,达到出水优良,稳定的效果。
6)消毒;
根据出水的要求,系统设计有消毒装置,一般采用清洁简便的紫外线杀菌方式,亦可选用消毒剂投加方式。
7)配套机电设备间:
抽吸泵、风机、电控柜等安装于设备机房内。整个系统在PLC控制下,自动运行,并对设备进行保护。各动力设备均设备用,故障自动切换,保持设备正常运行。
七、BH-JZ一体化污水处理设备主要规格参数表;
八、远程监控及控制运行系统;
1)、全自动控制,无需专人值守(一位操作员可以管理15 套以上);
2)、提供趋势预测及应对突发事件报警;
3)、上传各种数字信息并通过计算通讯平台进行收集、整合、分析和处理,构建经优化的生产过程管理方案,实现点源的实时数据监控、对进、产、排三个主要环节进行远程监控;
4)、实现对生产过程的实时控制与精细化管理,达到规范管理、节能降耗、减员增效的目的;
5)、通过连接互联网的计算机可轻松直观的监控点源的运行状况;