3044am永利集团
3044am永利集团专业生产一体化净水器设备
在线留言
|
关于3044am永利集团
|
联系我们
网站首页
关于3044am永利集团
公司简介
荣誉资质
企业文化
新闻资讯
产品服务
净水器系列
污水处理系统
过滤系列
污泥处理系列
废气净化系列
冷却塔系列
加药设备系列
纯水系列
现场业绩
生物除臭气装置
制药污水行业
技术支持
公司实力
生产车间
生产设备
视频中心
联系我们
Prev
Next
1
2
3
热门关键词:
FH-200一体化净水器
FH-120一体化净水器
FH-50一体化净水器
一体化净水器 虹吸反冲洗净水器
当前位置:
首页
>
产品服务
>
污泥处理系列
>
XGH-回转式机械格栅除污机
产品服务 •
品类齐全
非标设计、制造能力 满足需求
产品服务
净水器系列
一体化净水器
FV系列模块集成一体化净水器
FA型一体化净水器
一体化净水器 虹吸反冲洗净水器
KGL一体化净水装置
变频供水设备
气压供水设备
浸没式超滤膜净水设备
浸没式中空纤维膜净水器
污水处理系统
气浮机
气浮设备
地埋式一体化污水设备
地上式一体化污水设备
移动式一体化设备
MBR膜处理设备
脉冲布水器
不锈钢高效脉冲布水器
水解酸化池脉冲布水器
GFV型竖流式气浮装置
中心传动式刮泥机
行车式刮吸泥机
厌氧塔 上流式厌氧污泥床
IC厌氧复合床反应器
纤维转盘过滤器
双周边传动刮泥机
污水一体化设备
过滤系列
改性纤维球过滤器
压紧式维球过滤器
彗星式纤维过滤器
纤维束过滤器
表面过滤器
连续式流砂过滤器
活性炭过滤器
核桃壳过滤器
无阀过滤器
石英砂过滤器
外进水微滤机
内进水微滤机
纤维球过滤器
污泥处理系列
带式污泥浓缩脱水机
叠螺式污泥脱水机
新型高效污泥浓缩机
DY型带式浓缩压滤机
不锈钢砂水分离器
不锈钢除砂器
XGH-回转式机械格栅除污机
转鼓式微滤机
废气净化系列
废气洗涤塔装置
布袋除尘器设备 中频炉粉尘处理
生物质燃料锅炉布袋除尘设备
气箱式布袋除尘器
DMC系列单机脉冲除尘器
净化洗涤塔
MPD型气箱式布袋除尘器
氨气洗涤塔
氰、铬、氨、酸、NOX、H2s废气净化洗涤
除二氧化碳器
SHD-W文丘里棒式脱硫塔
吸附浓缩 催化氧化设备
活性炭吸附塔
滤筒除尘器
喷淋净化塔
冷却塔系列
新型节能玻璃钢冷却塔
10BZN中温型逆流式玻璃钢冷却塔
10BZGN中温组合型逆流式玻璃钢冷却塔
10BZWN中温污水逆流式玻璃钢冷却塔
25BG高温差玻璃钢冷却塔
10BZ高温差1000m3h玻璃钢冷却塔
加药设备系列
加药装置
不锈钢加药装置
石灰粉投加装置
JY-型絮凝剂PAC加药装置
JY-型助凝剂PAM加药装置
QJY干粉投加溶药制备装置
次氯酸钠发生器
二氧化氯发生器
三腔式全自动加药装置
纯水系列
逆流再生阴、阳离子交换器
气顶压逆流再生阴、阳离子交换器
双室逆流离子交换器
浮动床离子交换器
混合离子交换器
RO-X反渗透海水、苦咸水淡化设备
RO-G中、高压锅炉补给水处理设备
UF超滤装置
NF钠滤装置
热门新闻
· 一体化净水器使用前的准备是怎样的?
· 一体化净水器常见问题及应对方案
· 一体化净水器维护要点解析
· 解析一体化净水器在生活饮用水工程中的应用
· 一体化净水器定义及简介
· 一体化净水器在农田灌溉中的应用
XGH-回转式机械格栅除污机
概述
型号说明
工作原理及构造
特点
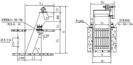
安装示意图
土建埋件图
上一篇:
不锈钢除砂器
下一篇:
转鼓式微滤机
相关产品 •
Products
XGH-回转式机械格栅除污机